We are able to custom manufacture attachments per your specific request.
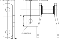
Dimensions are given in inches.
Dimensions are given in inches.
Unit of Measure
Specifications
Attachment No. |
N/A A1 |
Chain Number |
N/A WH124 |
Weight |
N/A 8.4 lb/ft |
Drawing |
N/A
Steel-Mill-A1 Attachment Drawing |
Dimension (A) |
N/A 2.62 |
Dimension (E) |
N/A 2.000 |
Dimension (F) |
N/A 0.62 |
Dimension (G) |
N/A 1.13 |
Dimension (H) |
N/A 1.81 |
Dimension (R) |
N/A 0.75 |
Dimension (T) |
N/A 0.38 |

